Verkocht:Staringstraat 440, 5343 GT Oss - Foto
Verkocht
+30

Staringstraat 440 5343 GT Oss

  • Eengezinswoning
  • 6 kamers
  • 4 slaapkamers
  • Bouwjaar 1972
  • 130 m² perceeloppervlakte
  • 123 m² gebruiksoppervlakte
  • B Energielabel B

Beschrijving

Op zoek naar een instapklare woning?

In een autoluw en kindvriendelijk hofje staat deze ruime tussenwoning met 4 slaapkamers, eigen oprit, veranda met glazen schuifsysteem en energielabel B. Ideale ligging: op loopafstand van winkelcentrum De Ruwert, scholen en speeltuin De Elckerlyc. Het centrum en station van Oss zijn goed bereikbaar. Voor wandelen, fietsen of ontspannen liggen de Geffense Bossen en de Geffense Plas op korte afstand. De A59 zorgt voor snelle verbindingen richting ’s-Hertogenbosch, Nijmegen en Eindhoven.

Aan de voorzijde van de woning bevindt zich de oprit met ruimte om op eigen terrein te parkeren. Daarnaast zijn er in de straat voldoende extra parkeergelegenheden aanwezig. Aan de voorzijde van de woning bevindt zich een praktische berging met meterkast.

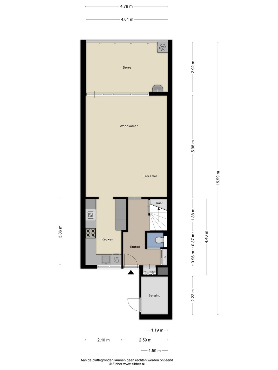
Begane grond
Entree met hal die toegang biedt tot het volledig betegelde toilet, de trapopgang en de woonkamer.
De woonkamer is licht en ruim dankzij de grote raampartij aan de achterzijde. Het plafond is afgewerkt met ingebouwde spots. Vanuit de woonkamer is er toegang tot de veranda, die is uitgerust met glazen schuifsysteem, tegelvloer en een wastafel met kraan. Aan de voorzijde bevindt zich de moderne keuken (2017) met verlaagd plafond met spots en een groot raam. De keuken is uitgerust met een oven, 4-pits gaskookplaat, afzuigkap, koelkast/vriezer en een vaatwasser.

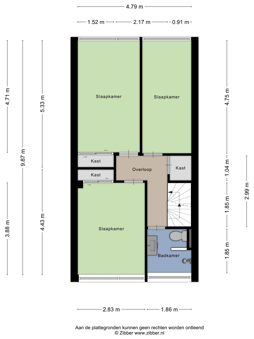
Eerste verdieping
Overloop met toegang tot drie slaapkamers, vaste trap naar de tweede verdieping en de badkamer.
Twee slaapkamers liggen aan de achterzijde en één aan de voorzijde, allen voorzien van laminaatvloeren en ingebouwde ledverlichting. Twee kamers beschikken over een ruime inbouwkast.
De badkamer (2017) ligt aan de voorzijde en is ruim opgezet met een inloopdouche, toilet, wastafel, designradiator en spotverlichting.

Tweede verdieping
Voorzolder met cv-ketel (2019), wasmachine- en drogeraansluiting en veel bergruimte. Hier bevindt zich tevens de vierde en grootste kamer, geschikt als slaap-, hobby- of sportruimte.

Tuin en buitenruimte
De achtertuin ligt op het zuidwesten, ideaal voor zonliefhebbers, en beschikt over een veranda met glazen schuifsysteem (2019). De tuin (ca. 50 m²) biedt volop ruimte voor een barbecue of om te ontspannen.

Samenvatting
* Gelegen in een rustige woonerf
* 4 slaapkamers
* Moderne keuken voorzien van inbouwapparatuur(2017);
* Badkamer (2017)
* CV ketel uit 2019
* Veranda met glazen schuifsysteem 2019
* Nabij het winkelcentrum Ruwert en uitvalswegen (A59)
* Energielabel B

Interesse? Plan een bezichtiging en ontdek de mogelijkheden van deze ruime woning!

Kaart

Kenmerken

Overdracht

Prijs
€ 365.000,- k.k.
Status
Verkocht
Aanvaarding
In overleg
Aangeboden sinds
Dinsdag 23 september 2025
Laatste wijziging
Maandag 24 november 2025

Bouw

Type object
Eengezinswoning, woonhuis, tussenwoning
Soort bouw
Bestaande bouw
Bouwjaar
1972
Type dak
Zadeldak

Oppervlaktes en inhoud

Perceeloppervlakte
130 m²
Woonoppervlakte
123 m²
Inhoud
449 m³
Oppervlakte overige inpandige ruimten
4 m²
Oppervlakte gebouwgebonden buitenruimte
14 m²

Indeling

Aantal bouwlagen
3
Aantal kamers
6 (waarvan 4 slaapkamers)

Locatie

Ligging
Aan rustige weg
In woonwijk

Tuin

Type
Achtertuin
Tuin 2 - Type
Voortuin

Energieverbruik

Energielabel
B

CV ketel

CV ketel
Intergas
Warmtebron
Gas
Bouwjaar
2019
Combiketel
Ja
Eigendom
Eigendom

Uitrusting

Aantal parkeerplaatsen
1
Warm water
CV-ketel
Verwarmingssysteem
Centrale verwarming
Badkamervoorzieningen
Douche
Toilet
Wastafel
Tuin aanwezig
Ja
Heeft schuur/berging
Ja

Kadastrale gegevens

Kadastrale aanduiding
Oss L 3929
Perceeloppervlakte
130 m²
Omvang
Geheel perceel
Eigendomsituatie
Eigen grond