Nieuw in verkoop:Dasseburcht 28, 5344 LN Oss - Foto
Nieuw in verkoop
+40

Dasseburcht 28 5344 LN Oss € 379.000,- k.k.

  • Eengezinswoning
  • 6 kamers
  • 4 slaapkamers
  • Bouwjaar 1974
  • 170 m² perceeloppervlakte
  • 135 m² gebruiksoppervlakte
  • B Energielabel B

Beschrijving

Ruime INSTAPKLARE tussenwoning met praktische indeling aan de Dasseburcht 28!

In een rustig, autoluw en kindvriendelijk hofje ligt deze verzorgde en instapklare tussenwoning met vier slaapkamers, een eigen oprit en energielabel B. De woning is in de afgelopen jaren door de huidige eigenaren met zorg gerenoveerd en beschikt over een luxe en verzorgde afwerking.

Begane grond
Via de nieuwe voordeur (2021) komt u binnen in de verzorgde hal met toegang tot de vernieuwde meterkast (2024), de moderne toiletruimte (2021), de trapopgang en de woonkamer.

De ruime en lichtvolle woonkamer is prettig ingedeeld en straalt comfort en rust uit. Aan de achterzijde van de woning bevindt zich de moderne open keuken (2018), uitgevoerd in een moderne tijdloze stijl en voorzien van diverse inbouwapparatuur, waaronder een oven, vaatwasser, inductiekookplaat, koelkast en afzuigkap. Vanuit de keuken is er directe toegang tot de achtertuin. De woning is volledig voorzien van rolluiken en verkeert in een instapklare staat, waardoor u hier zonder verbouwingen direct kunt wonen.

Eerste verdieping
Op de eerste verdieping bevinden zich vier slaapkamers, allen voorzien van rolluiken en een in 2024 nieuw gelegde PVC-vloer. De kamers zijn ruim opgezet en bieden volop mogelijkheden voor slapen, werken of hobby’s.

De moderne badkamer is in 2021 vernieuwd en uitgevoerd in een luxe stijl. De badkamer is voorzien van een inloopdouche, een toilet en een wastafel met stijlvol wastafelmeubel, wat zorgt voor comfort en een verzorgde uitstraling.

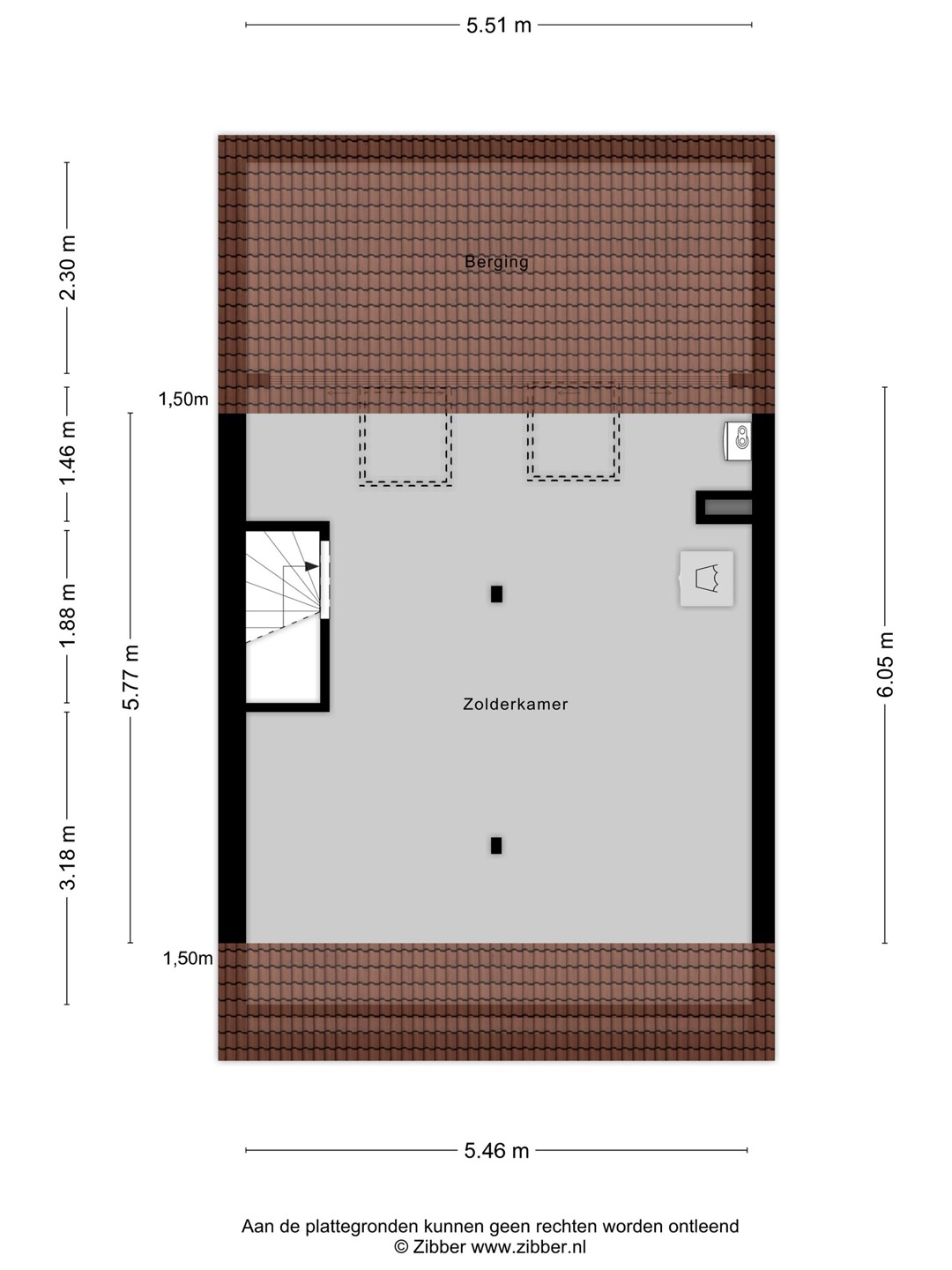
Tweede verdieping
De woning beschikt over een vaste trap naar de zolderverdieping. Hier bevinden zich de wasmachineaansluiting en een royale, vrij in te delen ruimte. De zolder is in 2021 geïsoleerd en voorzien van twee nieuwe dakramen, wat zorgt voor veel licht en een aangename sfeer. Deze verdieping leent zich uitstekend voor het realiseren van een extra slaapkamer, werkkamer of hobbyruimte. De CV-ketel is in 2020 geplaatst en is in Eigendom.

Buitenruimte
De woning beschikt over een eigen oprit aan de voorzijde. Aan de achterzijde bevindt zich een verzorgde, onderhoudsvriendelijke achtertuin met diverse mogelijkheden voor het creëren van een terras of een groene zithoek.

Achter in de tuin is in 2021 een houten berging met overkapping geplaatst, waardoor u het hele jaar door kunt genieten van de tuin. Vanuit de berging is de achterom bereikbaar, wat zorgt voor extra gemak. De tuin is onderhoudsvrij aangelegd en voorzien van kunstgras.

Ligging:
De woning ligt in een kindvriendelijke en goed bereikbare woonwijk, met uitvalswegen richting Nijmegen, Eindhoven en ’s-Hertogenbosch op enkele minuten afstand. In de directe omgeving bevinden zich basis- en middelbare scholen, winkelcentra Heihoek en De Ruwert voor de dagelijkse boodschappen, evenals de Geffense Plas, meerdere speeltuinen en een sportvereniging op loopafstand.

Samenvatting
• Energielabel B!;
• Gelegen in een rustig en kindvriendelijk woonerf;
• Vier ruime slaapkamers;
• Vrij in te delen zolderruimte met veel lichtinval;
• Volledig voorzien van rolluiken;
• Moderne keuken geplaatst in 2018;
• CV-ketel geplaats in 2020;
• Badkamer en toilet vernieuwd in 2021;
• Nieuwe houten berging en overkapping geplaatst in 2021;
• Gedeeltelijk voorzien van HR++ glas en een nieuwe voordeur met driepuntssluiting in 2021:
• Zolderverdieping geïsoleerd en voorzien van twee nieuwe Velux dakramen in 2021:
• Buitenzijde gereinigd, geïmpregneerd en geschilderd in 2023;
• Meterkast volledig vernieuwd en uitgebreid naar 24 groepen met 3-fase aansluiting 2024;
• PVC-vloer op de eerste verdieping geplaatst in 2024;
• Schilderwerk buiten inclusief de rolluiken in 2024;
• Goten gerepareerd met EPDM in 2025;
• Gunstig gelegen nabij winkelcentrum Ruwert en uitvalswegen (A59);

Interesse? Plan een bezichtiging en ontdek de mogelijkheden van deze ruime woning!

Kaart

Kenmerken

Overdracht

Vraagprijs
€ 379.000,- k.k.
Status
Nieuw in verkoop
Aanvaarding
In overleg
Aangeboden sinds
Donderdag 29 januari 2026
Laatste wijziging
Maandag 9 februari 2026

Bouw

Type object
Eengezinswoning, woonhuis, tussenwoning
Soort bouw
Bestaande bouw
Bouwjaar
1974
Dakbedekking
Dakpannen
Type dak
Zadeldak
Isolatievormen
Dakisolatie

Oppervlaktes en inhoud

Perceeloppervlakte
170 m²
Woonoppervlakte
135 m²
Inhoud
478 m³
Oppervlakte externe bergruimte
5 m²
Oppervlakte gebouwgebonden buitenruimte
4 m²

Indeling

Aantal bouwlagen
3
Aantal kamers
6 (waarvan 4 slaapkamers)

Locatie

Ligging
Aan rustige weg
In woonwijk

Tuin

Type
Achtertuin
Hoofdtuin
Ja
Oriëntering
Zuidoost
Heeft een achterom
Ja
Staat
Prachtig aangelegd
Tuin 2 - Type
Achtertuin
Tuin 2 - Staat
Prachtig aangelegd
Tuin 3 - Type
Voortuin
Tuin 3 - Staat
Prachtig aangelegd

Energieverbruik

Energielabel
B

CV ketel

CV ketel
Nefit Kombi kompakt HRE 36/30A
Warmtebron
Gas
Bouwjaar
2020
Combiketel
Ja
Eigendom
Eigendom

Uitrusting

Aantal parkeerplaatsen
1
Warm water
CV-ketel
Verwarmingssysteem
Centrale verwarming
Badkamervoorzieningen
Douche
Toilet
Wastafelmeubel
Heeft een alarm
Ja
Heeft kabel-tv
Ja
Tuin aanwezig
Ja
Heeft rolluiken
Ja
Heeft schuur/berging
Ja
Heeft een dakraam
Ja
Heeft ventilatie
Ja

Kadastrale gegevens

Kadastrale aanduiding
Oss L 2995
Perceeloppervlakte
170 m²
Omvang
Geheel perceel
Eigendomsituatie
Eigen grond